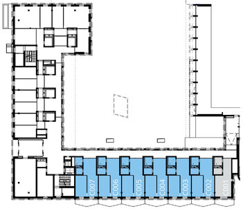
Erdgeschoss
Erdgeschoss
| Wohnungs- Nr. | Anzahl Zimmer | Wohnung | Wohnungs- Typ | Grösse | Pensions-* pauschale | Status | |
| C001 | 1 | Zimmer-Wohnung | Typ E1 | 47 m² | o.A. | vermietet | |
| C002 | 2½ | Zimmer-Wohnung | Typ E2 | 61 m² | o.A. | vermietet | |
| C003 | 2½ | Zimmer-Wohnung | Typ E2 | 61 m² | o.A. | vermietet | |
| C004 | 2½ | Zimmer-Wohnung | Typ E2 | 61 m² | o.a. | vermietet | |
| C005 | 2½ | Zimmer-Wohnung | Typ E2 | 61 m² | o.A. | vermietet | |
| C006 | 2½ | Zimmer-Wohnung | Typ E2 | 61 m² | o.a. | vermietet | |
| C007 | 2½ | Zimmer-Wohnung | Typ E2 | 60 m² | o.a. | vermietet |
* Inklusiv Nebenkosten sowie Dienstleitungs-Paket mit Ausstattung, Sicherheit, Komfort. Zuschlag für Zweierbelegung: CHF 100 pro Monat. Tiefgaragen-Parkplatz: CHF 130. Sicherheitsleistung: CHF 7'000 einmalig bei Vertragsabschluss. Änderungen vorbehalten.

Die Vermassungen sind approximativ, Abweichungen im Endausbau sind möglich.