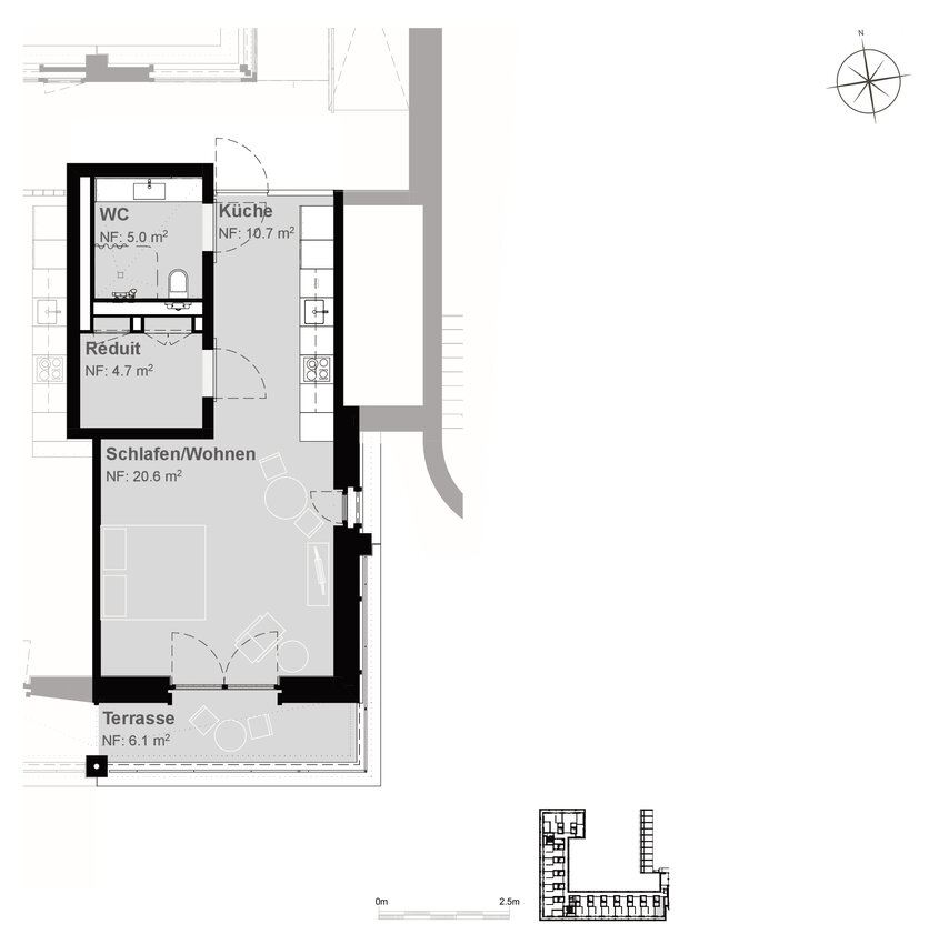
Wohnungstyp R1
| Anzahl Wohnungen: | 3 |
| Vergleichbare Typen: | D1 E1 |
Merkmale R1
| Stockwerk: | Regelgeschoss 1 bis 3 |
| Wohnnutzfläche: | ca. 41 m² |
| Raumhöhe: | 2.5 m |
| Anzahl Zimmer: | 1 |
| Ausrichtung Terrasse: | Süd |
| Pensionspauschale pro Monat*: | o.A. |
* Inklusiv Nebenkosten sowie Dienstleitungs-Paket mit Ausstattung, Sicherheit, Komfort. Zuschlag für Zweierbelegung: CHF 100 pro Monat. Tiefgaragen-Parkplatz: CHF 130. Sicherheitsleistung: CHF 7'000 einmalig bei Vertragsabschluss. Änderungen vorbehalten.
Grundriss R1

Die Vermassungen sind approximativ.